Background
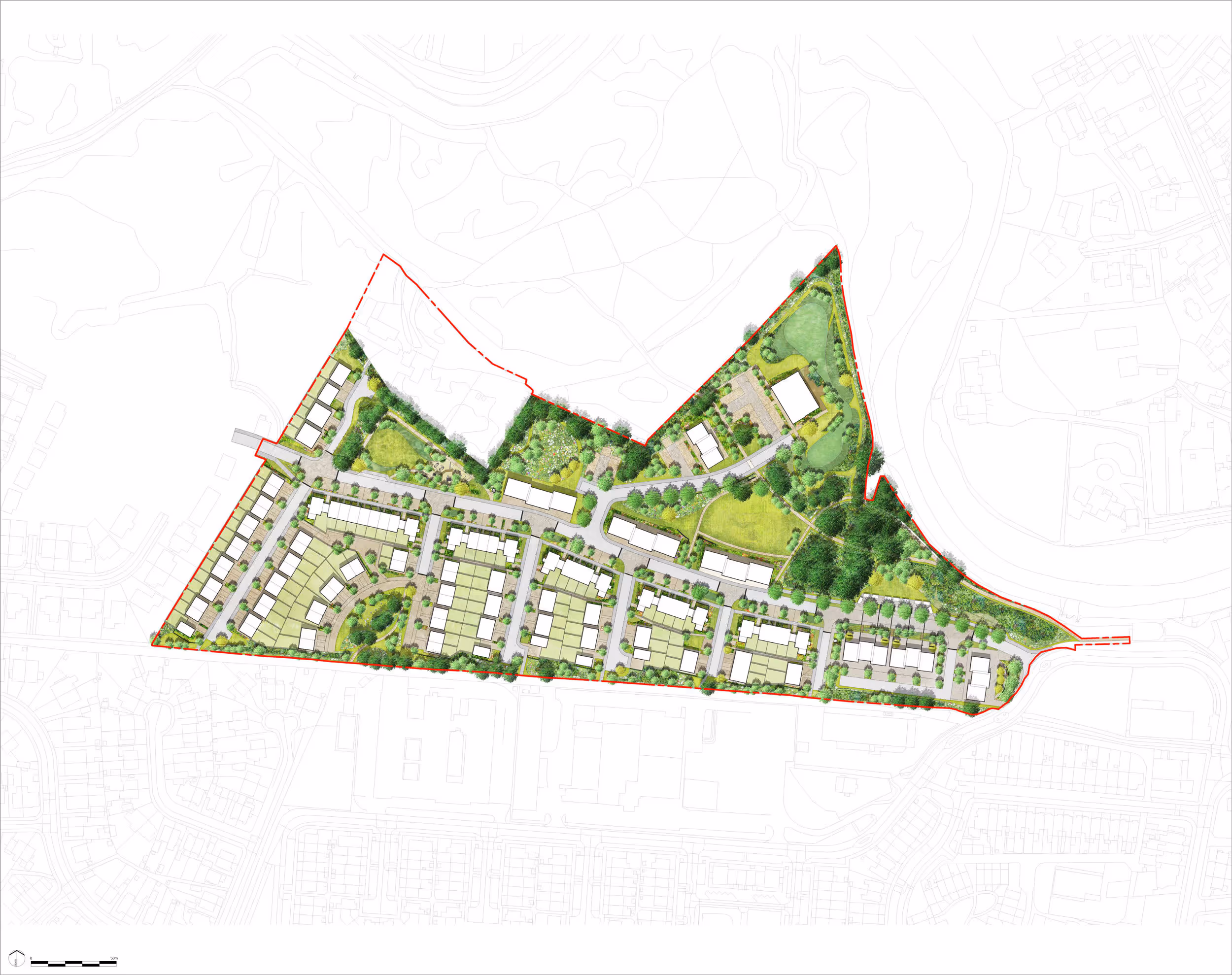
We were appointed to develop the masterplan for Sulby Riverside, a major residential-led regeneration scheme near Ramsey Town Centre.
For many years, the site had been privately owned and closed to the public.
Under new ownership, our vision is to transform this key gateway site into a vibrant riverside community, opening access to the River Sulby and creating a new destination that combines homes, landscape, and public life.
The masterplan builds upon the framework established in the West Ramsey Development Plan, which identified the area for future growth.
Our proposal introduces a mix of high-quality homes, new retail and workspace opportunities, and a riverside gastro-pub with function rooms, creating an animated public realm that celebrates its connection to the water.
Central to the design is a new spine road that links Poyll Dooey Road to the eastern settlements, improving accessibility and reducing pressure on local routes during major events such as the TT.












