Background
The Creekside Discovery Centre is located beside the tidal waters of Deptford Creek. As Deptford undergoes rapid transformation and gentrification, this project aims to preserve the area’s industrial legacy while renewing its natural and social value.
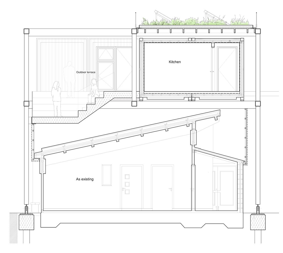
The centre, run by Creekside Education Trust, has long been a gateway to urban wildlife, but its existing building had become too small for growing demand and its green roof had aged. In flood-zones 2 and 3, expansion was constrained by environment regulations.
By reusing and reimagining the existing structure rather than replacing it, we can extend capacity and educational reach while safeguarding ecology, celebrating heritage and delivering a building that belongs to the creek as much as to the community.









